Project Overview

As part of the 2026 Annual Resurfacing Program, Northbrook Place (Eisenhower to West Oakbrook Drive) and West Oakbrook Drive (Ann Arbor Saline to South Main) will be resurfaced to improve the pavement surface for all road users.

Why is this project being done?

To improve the pavement surface for all road users.

What work is anticipated to be done?

Repair identified storm inlets, concrete curb, and upgrade concrete ramps to meet current American with Disability Act Standards.

Existing asphalt will be removed and replaced. The city received a grant from Michigan Technology University to utilize rubberized asphalt, a more sustainable product which incorporates ground rubber from used car tires.

  • West Oakbrook Drive
    • Eliminating the two-way left turn lane and adding dedicated bike lanes.
    • Adding new crosswalks in areas with identified needs.
    • Installing new streetlights adjacent to the new crosswalks.
  • Northbrook Place
    • Eliminating two vehicle lanes and adding buffered bike lanes.
    • Adding new crosswalks in areas with identified needs.
    • Installing new streetlights adjacent to the new crosswalks.
    • Replacing the deteriorating asphalt path with a concrete path.

Cost and Funding Source

Major Street Fund

  • The road will be closed to thru traffic throughout the duration of the project.
  • Bus stops will be periodically impacted during construction. Coordination with the AATA is ongoing.

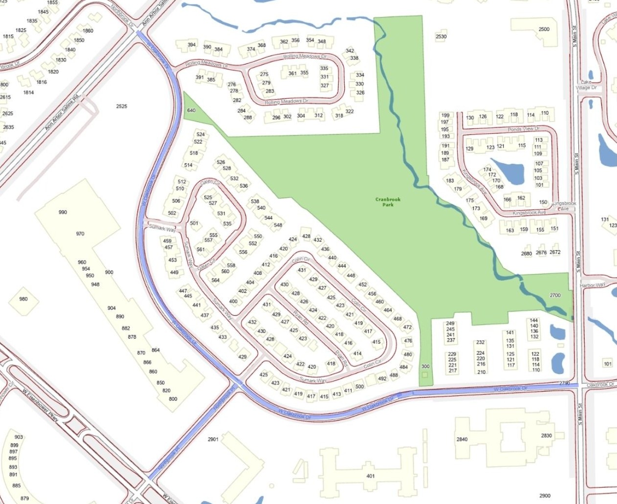
Project Boundaries

Northbrook Place (Eisenhower to West Oakbrook Drive) and West Oakbrook Drive (Ann Arbor Saline to South Main) project extent

Northbrook Place and West Oakbrook Drive project extent